SECCION GENERAL Y PLANTA DE ACCESOS.
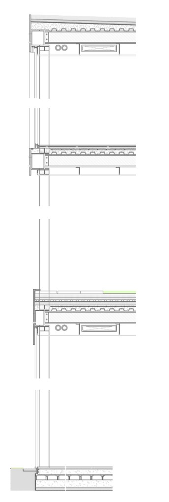
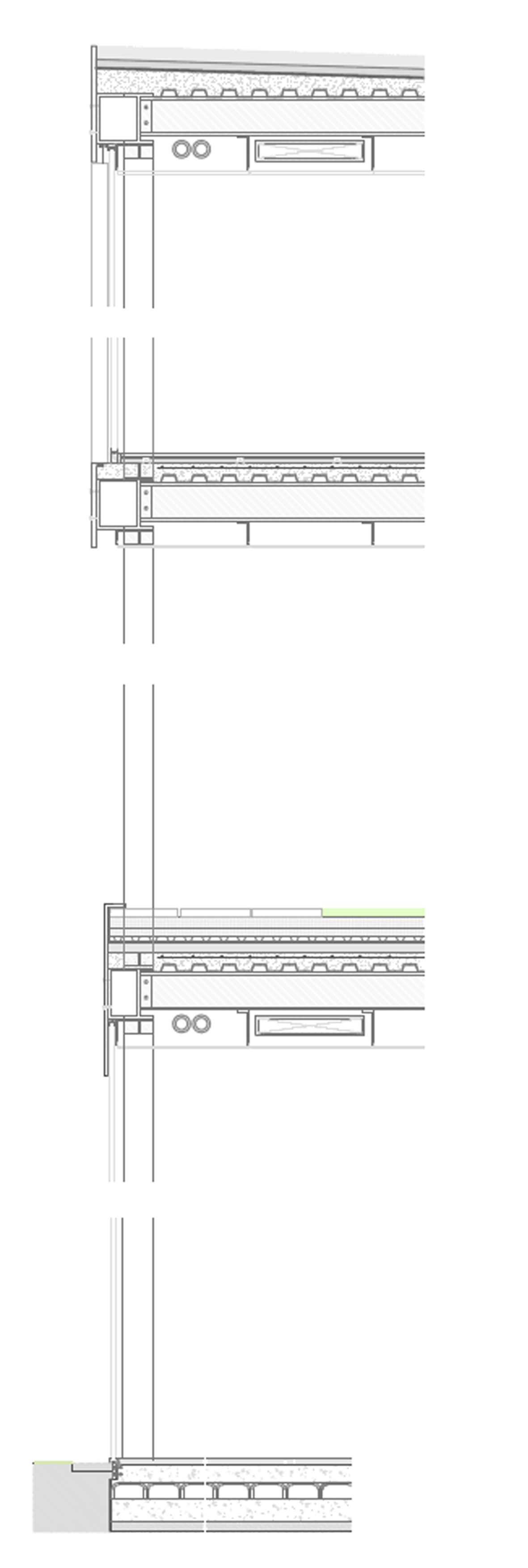
VISTAS Y DETALLES CONSTRUCTIVOS.
DETALLE DEL MODULO ESTRUCTURAL.
La propuesta para este proyecto se basaba en una estructura modular de paraguas de hormigón. Esto permitía crear los espacios diáfanos necesarios para el tránsito y estancia de las personas. La terminal se divide en tres niveles. El de acceso para las salidas, el nivel inferior para las llegadas, y el tercer nivel son una serie de pasarelas colgadas de la estructura, que comparten el gran espacio de la terminal y que son las zonas de tiendas y cafeterías. Los elementos auxiliares del programa son colocados en módulos de cerámica independientes. La terminal cuenta con un patio que relaciona los tres niveles y los ilumina. Otra idea del proyecto era la permeabilidad y crear un ambiente agradable con la vegetación, lo cual fue posible gracias a los muros cortina de los cerramientos y las celosías cerámicas.

















