Plan Director Cuña Agrícola Sureste + Plan Especial Campus Empresarial Azucarera, Aranda de Duero, Burgos.
IDEAS PARA EL PLAN DIRECTOR CUÑA AGRICOLA SURESTE.
CAMPUS EMPRESARIAL AZUCARERA Y PASARELA SOBRE EL DUERO.
El Plan Director se realiza sobre una superficie de 300Ha de suelo rústico situadas en una zona de la corona agrícola de Aranda de Duero. Dentro de las determinaciones de este plan se encuentran los terrenos de una antigua industria azucarera (suelo urbano no consolidado), hoy abandonada pero con edificaciones de valor. Esos terrenos, bajo las determinaciones del Plan Director, los desarrolla el Plan Especial campus empresarial Azucarera.
Las principales actuaciones que se llevan a cabo dentro de las 300Ha van destinadas a mejorar la conexión con la ciudad. Muchos de estos terrenos se encuentran abandonados, aun teniendo un gran potencial agrícola y paisajístico. Por lo que se desarrollan pasarelas a través de los ríos y vías de comunicación, se mejoran caminos, se realizan itinerarios paisajísticos con miradores, etc. La principal idea es hacer que la gente conozca y use estos espacios de gran valor, para así fomentar su protección frente a la ocupación por edificación dispersa.
En cuanto a los terrenos de la antigua Azucarera, se desarrolla un plan para convertirlos en un campus empresarial basado en la innovación y en la formación. Dada la cantidad de grandes empresas e industrias situadas en Aranda, se echaba en falta un espacio donde pudieran convivir sus oficinas rectoras, laboratorios, además de otros servicios. Era también una oportunidad para desarrollar equipamientos formativos vinculados al mundo empresarial y agrícola. Por otro lado, se recupera la edificación industrial de valor. Como se puede ver en el dibujo, una de las principales ideas era la permeabilidad hacia el exterior de la ordenación y la relación con el entorno.
Plan general para Aranda de Duero, Burgos.
IDEAS PARA EL PLAN GENERAL DE ARANDA.
IDEAS PARA EL PLAN GENERAL DE ARANDA.
Las ideas principales para el Plan General de Aranda se basaron en la vocación agronatural de su término municipal. Este se encuentra atravesado por tres ríos, además de contar con un gran número de hectáreas dedicadas a la vid y con importantes zonas arboladas al norte. El principal problema que se observó fue la desconexión de la ciudad con su territorio circundante, lo que llevó a fomentar una serie de recorridos naturales, red natural, que conectaban la ciudad con los terrenos de vides y con las zonas arboladas. Por otro lado, se dispuso una corona agrícola para Aranda de Duero en la cual, se fomentaba la agricultura periurbana, la venta de productos agrícolas in situ y sobre todo, esta ayudaba a contener la edificación dispersa en suelo rústico y el abandono de terrenos de labor. En el interior del núcleo urbano uno de los principales problemas que solucionaron fue el de la movilidad y la congestión de tráfico.
Reformando Malasaña, Madrid.
PROPUESTA DE ITINERARIOS ACTIVADORES DEL TEJIDO.
La propuesta consistía en reformar partes degradadas del barrio de Malasaña, Madrid. Para ello estas zonas se conectaron mediante itinerarios que formaban una red. En ellos se incluían diferentes actividades para dinamizarlos. Desde darles un carácter propio, pasando por reforma de edificios singulares, hasta readecuación de plazas o fomento de circuitos de comercio local. La propuesta no sólo actuaba sobre el propio barrio, si no que también cruzaba al otro lado de la Gran Vía para enganchar con las principales plazas del otro lado. Proponiendo también una reforma de la Plaza de España, uno de los espacios públicos más infrautilizados de Madrid, como centro comercial al aire libre.
Este trabajo fue realizado en grupo.
Plan general para San Martín de la Vega, Madrid.
PROPUESTA PARA EL TERMINO MUNICIPAL.
PROPUESTA PARA EL NÚCLEO URBANO.
Se trata de una propuesta para Plan General en San Martín de la Vega, Madrid. Dicho municipio ofrecía la oportunidad de reflexionar sobre la capacidad que puede tener el planeamiento de contribuir a enfrentar los retos sociales y ambientales de nuestras ciudades y pueblos. Se trata de un municipio con una vocación tradicionalmente agraria muy próximo a Madrid aunque fuera de su primera corona metropolitana. Esta propuesta intenta sacar el máximo partido de los valores agrarios y naturales del término. Para ello propone una ordenación del término ligada a la producción local, al ecoturismo y al fomento de circuitos cortos de comecialización y transformación de productos del campo.
Este trabajo fue realizado en grupo.
Trabajado posteriormente publicado en la revista urban-e: http://urban-e.aq.upm.es/talleres/ver/7
Plan parcial de La Rosilla, Vallecas, Madrid.
VISTA AÉREA.
La actuación consiste en el desarrollo de un plan parcial en uno de los extremos del PAU Vallecas. El principal punto de partida es la conexión de la actuación con las calles adyacentes. A partir de ahí se genera una gran manzana peatonal con bolsas de aparcamiento distribuidas en los extremos junto a las vías estructurantes del lugar. Dentro de esa gran manzana se desarrolla una jerarquía donde aparece como viario de primer orden la calle central, comercial, que es la que conecta con el barrio existente. En ella aparece la edificación en bloque lineal, generándose dilataciones y contracciones del espacio público. El resto de la manzana es un tejido residencial unifamiliar tipo kasbah, no obstante, en él se generan dos bloques en altura como puntos de referencia, así como varias plazas de carácter local, a diferencia de las que se crean en la calle principal.
Este trabajo fue realizado en grupo.
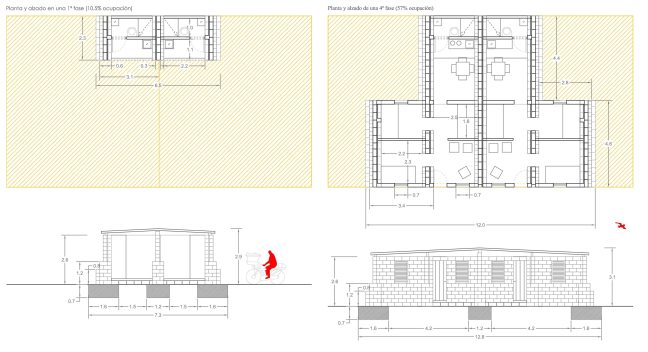
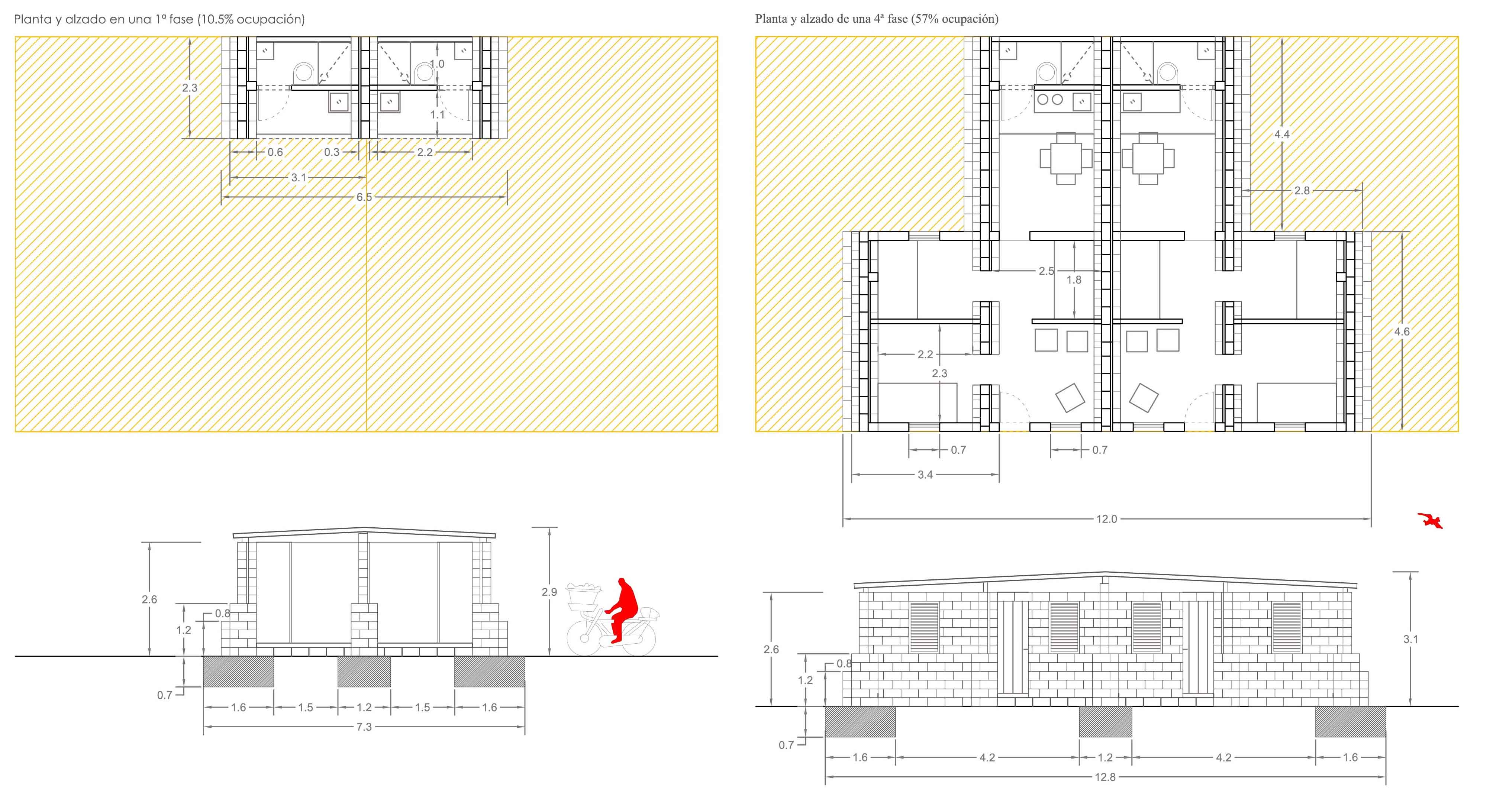
Mejora urbana en barrio de La Balanza, Lima, Perú.
El barrio de La Balanza es uno de los más precarios de Lima, careciendo de servicios básicos y con infraviviendas realizadas con materiales de desecho. Este proyecto consistía en actuar en el espacio público central del barrio. Mediante una actuación de bajo presupuesto se proponía reformar este espacio de convivencia además de incluir servicios como una pequeña escuela y un salón multifuncional. La idea de reformar este espacio del barrio y no otro, es debido a qué teniendo en cuenta el bajo presupuesto es más útil utilizarlo aquí dado que va a llegar a más población.
Por otro lado, se realiza un proyecto de vivienda progresiva que puede ser utilizado en un futuro para la sustitución de infraviviendas del barrio. Esta consiste en un módulo básico que puede ir ampliándose con posterioridad, en función de las necesidades y si el presupuesto lo permitiese.
Este trabajo fue realizado en grupo.








